鄭州杰凱專業生產不銹鋼化肥顆粒上料機,按其輸送形式可分為傾斜式尿素顆粒用不銹鋼上料機,垂直式自動螺旋上料機,按照結構不同可分為螺旋式和斗式自動上料機,斗式顆粒上料機又可分為垂直式和Z型顆粒上料機,使用廠家可據自己的使用現場,靈活選擇,可量身定做定制不同要求的顆粒上料機,源頭廠家,價格美麗。
一、垂直不銹鋼化肥顆粒上料機

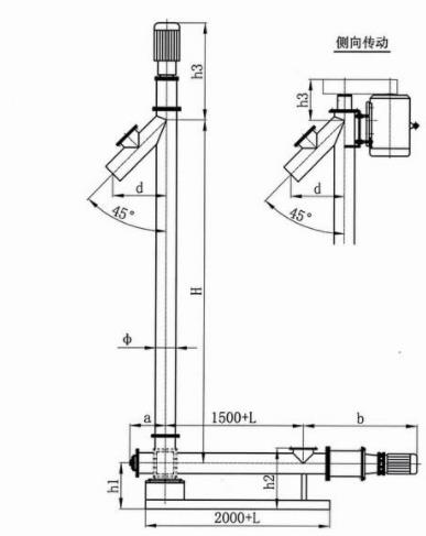
1、不銹鋼化肥顆粒上料機的工作原理。
垂直螺旋提升機利用轉螺旋沿固定殼體移動輸送物料,頭部和尾部軸承從殼體中移出。吊裝軸承采用滑動軸承,配有防塵密封裝置。垂直螺旋提升機軸瓦一般采用粉末冶金,水泥輸送采用毛氈軸瓦,吊軸與螺旋軸滑塊連接。
2、不銹鋼化肥顆粒上料機設備的結構特點:
1.齒輪減速電機裝置依次與外殼管和螺旋總成連接,組合成一整套設備,便于移動和拆卸。
螺旋總成與軸端用花鍵連接,拆裝方便,承載力大,中性好。
3.密封性能好,外殼采用無縫鋼管,各端特殊連接,整機無粉塵泄漏,不浪費材料,創造良好的工作環境,符合環保要求。
4、體積小,轉速高,螺距變化大,保證快速均勻輸送。
5.進料口可根據工作現場生產所需的傾斜角度采用法蘭連接、布袋連接和萬向節法蘭連接,用戶可根據需要選擇。
二、傾斜式尿素顆粒用不銹鋼上料機廠家定制:

1、該CY-T1型尿素顆粒用不銹鋼上料機廠家設計定制,能夠提升多種粉劑和顆粒類物料,裝料倉與絞龍均為不銹鋼制成;
2、上料電機、振動電機各自開關控制振動幅度可調,整條螺旋可以方便拆裝、清洗。
3、該機具有自動加料、自動停止(獨立使用需要加裝我公司的控制系統,以期完成自動加料功能)
4、螺旋及料桶與料倉之間軟連接,拆卸輕松;
5、料筒下端有活門及正反轉開關,尿素顆粒用不銹鋼上料機清洗方便;
6、料倉加配振動電機,使物料輕松自動進入螺旋。
7、提升量:1000-3000Kg/H
8、尿素顆粒用不銹鋼上料機廠家設計的料箱容積:100-300Kg
9、上料高度:1600mm(高度可根據用戶定制)
10、電壓功率:AC380v 1100W(可定制220v)
11、整機重量:150kg
三、z型斗式提升機自動上料機產品特點

1、可實現物料水平和垂直高度的快速提升
2、自動上料機可實現電腦控制,自動化程度高
3、z型不銹鋼上料機操作簡單,維護方便
4、耐酸、耐堿、耐油,可輸送腐蝕性物料
5、z型不銹鋼上料機整機由304不銹鋼和PP機塑料組成,可用于食品級物料的輸送
6、自動上料機物料輸送過程中基本無破損,可減少物料的損耗
7、可選配震動喂料器投料,快速、均勻,無堵料、空料的等現象
三、z型斗式提升機技術參數
功率:0.75-1.5kw
輸送量:3-8m3/h
輸送斗:1.6L(420*140*70)(食品級PP料)
電壓:220v/380v 50hz
自動上料機規格:L2300*W1000*1250mm
重量:500-600kg
四、產品綜述
1、用戶可以靈活選擇不同形式的輸送方式,來完成花費顆粒的上料。
2、自動螺旋上料機可與相關設備配套通訊,實現自動化上料,也可配置我司的plc控制系統,實現上料過程的自動化
3、源頭廠家,免費設計,價格優惠
4、可設計多點供料系統




客服1